*** Wir gratulieren dem Ver- und den Käufern – schönes Einfamilienhaus in ruhiger Wohngegend ***
21337 Lüneburg, Einfamilienhaus zum Kauf
Objektdaten
-
Objekt ID527233
-
ObjekttypenEinfamilienhaus, Haus
-
Adresse21337 Lüneburg
-
Etagenanzahl im Haus2
-
Wohnfläche ca.138 m²
-
Grundstücksfläche ca.336 m²
-
Nutzfläche ca.5 m²
-
Zimmer4,5
-
Schlafzimmer3
-
Badezimmer2
-
Terrassen2
-
BefeuerungGasheizung
-
UmgebungGrundschule: 0,2 km
Realschule: 6,2 km
Gymnasium: 4,5 km
Autobahn: 4,9 km
Zentrum: 2,9 km
-
Baujahr2018
-
Verfügbar abNach Vereinbarung
-
Stellplatz:1 Stellplatz
-
Carport:1 Stellplatz
-
Preisauf Anfrage
Ausstattung / Merkmale
- Abstellraum
- Einbauküche
- Gäste-WC
- Kamin
- Kein Keller
- Terrasse
Objektbeschreibung
Beschreibung
Dieses moderne Einfamilienhaus wurde im Jahr 2018 in massiver Bauweise errichtet und erfüllt durch seine energieeffiziente Ausstattung höchste Wohnansprüche. Die Immobilie überzeugt mit einem geringen Energiebedarf, Solarthermie-Anlage, dreifach verglasten Fenstern, einer kompletten Fußbodenheizung sowie elektrischen Außenrollläden – ideal für zeitgemäßes, nachhaltiges Wohnen.
Das Haus erstreckt sich über ein Ober- und Untergeschoss mit drei großzügigen Schlafzimmern, zwei modernen Bädern, einem offenen Wohn- und Essbereich sowie einer hochwertigen Einbauküche. Zusätzlich bietet das ausgebaute Dachgeschoss einen Abstellraum, der weiteren Stauraum schafft.
... weitere Informationen erhalten Sie in der vollständigen Verkaufsaufgabe.
Ausstattung
- KFW Effizienzhaus 55
Wandaufbau: die Außenmauern Poroton 17,5 cm, Isolierung 14 cm Kerndämmung;
der Verblendstein ist ein edler Röben Cambridge Vormauerziegel, 11,5 cm;
die Innenmauern sind aus Kalksandstein, 17,5 cm;
Dach: hochwertige Tondachpfannen der Marke Röben Lugano Basalt.
- Vaillant aurocompakt Gasheizung mit Solarkollektoren und 150 Liter Schichtenladespeicher
... weitere Informationen erhalten Sie in der vollständigen Verkaufsaufgabe.
Sonstige Informationen
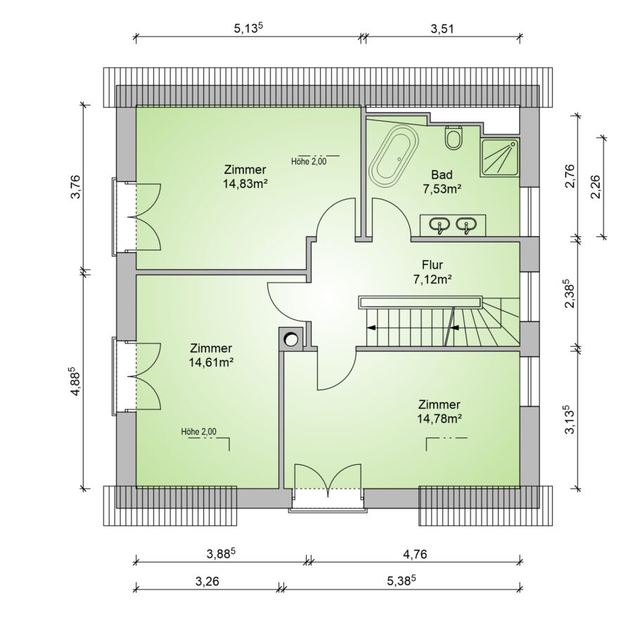
HINWEISE: Bezüglich der Grundrissskizzen und Fotos berücksichtigen Sie bitte, dass diese mit dem aktuellen Zustand nicht übereinstimmen müssen und viele Fotos mit einem Weitwinkelobjektiv erstellt wurden, so dass die Räume größer erscheinen.
BESICHTIGUNG: *** Ihren persönlichen Besichtigungstermin vereinbaren Sie mit unserem Büro. ***
MAKLERPROVISION: Für den Käufer entsteht im Erwerbsfall keine Maklerprovision.
ERWERBSNEBENKOSTEN: Die Notar- und Gerichtskosten sowie die Grunderwerbsteuer zahlt der Käufer.
GESCHÄFTSBEDINGUNGEN: Wir veräußern die Immobilie als einseitiger Interessenvertreter des Verkäufers und werden ausschließlich durch diesen vergütet. Die Angebote und Mitteilungen sind nur für den Empfänger bestimmt und vertraulich zu behandeln. Sie dürfen daher weder das Angebot noch Einzelheiten daraus Dritten ohne unsere Einwilligung weitergeben. Alle Angaben in dieser Verkaufsaufgabe stammen vom Verkäufer, weshalb eine Haftung der Firma Sasse Immobilien GmbH für diese Angaben nicht übernommen wird. Insbesondere die Angaben zur Wohnfläche und zum Baujahr sind von uns im Einzelnen nicht überprüft worden. Darüber hinaus kann keine Gewähr für die Qualität des Objektes und die Verfügbarkeit im Augenblick des Zuganges der Offerte übernommen werden.
Lage
Dieses Wohlfühlzuhause liegt im ruhigen Stadtteil Neu Hagen, 21337 Lüneburg – ein gewachsenes Wohngebiet mit überwiegend Einfamilien- und Reihenhäusern - ideal für ein ruhiges, zugleich urbanes Wohnen. Schulen, Kitas, Supermärkte, Ärzte und Bushaltestellen sind bequem zu Fuß erreichbar. Auch die Leuphana Universität sowie die Innenstadt liegen nur wenige Minuten entfernt.
Naturnahes Wohnen wird hier großgeschrieben: Der Wilschenbrucher Wald, der Kurpark und weitere Naherholungsflächen bieten Raum für Erholung, Sport und Freizeit.
... weitere Informationen erhalten Sie in der vollständigen Verkaufsaufgabe.
Die dargestellte Position der Immobilie ist nur eine ungefähre Angabe.
Energiebedarfsausweis
-
Ausstelldatum11.03.2019
-
Gültig bis10.03.2029
-
GebäudeartWohngebäude
-
Baujahr lt. Energieausweis2018
-
PrimärenergieträgerERDGAS_LEICHT
-
EnergieeffizienzklasseA
-
Endenergiebedarf30.8 kWh/(m²·a)
Kontaktdaten
-
NameHerr Heinrich Sasse
-
FirmaSasse Immobilien GmbH
-
AdresseBäckerweg 1
21376 Salzhausen-Luhmühlen -
E-Mail Zentrale
-
Tel. Zentrale
verkauft
Dieses Objekt ist zur Zeit leider nicht verfügbar.




























