*** Großes Zweifamilienhaus mit viel Platz & Raum für 2 Generationen oder zum Arbeiten & Wohnen ***
21442 Toppenstedt, Zweifamilienhaus zum Kauf
Objektdaten
-
Objekt ID527221
-
ObjekttypenHaus, Zweifamilienhaus
-
Adresse21442 Toppenstedt
-
Etagenanzahl im Haus3
-
Wohnfläche ca.207 m²
-
Grundstücksfläche ca.1.000 m²
-
Nutzfläche ca.124 m²
-
Zimmer8
-
Schlafzimmer6
-
Badezimmer2
-
Separate WC2
-
Balkone1
-
Terrassen1
-
BefeuerungÖlheizung
-
Baujahr1974
-
Verfügbar abnach Vereinbarung
-
Stellplatz:3 Stellplätze
-
Garage:1 Stellplatz
-
Preisauf Anfrage
Ausstattung / Merkmale
- Abstellraum
- Balkon
- Einbauküche
- Einliegerwohnung
- Gäste-WC
- Keller
- Separates WC
- Terrasse
Objektbeschreibung
Beschreibung
Das angebotene Zweifamilienhaus wurde 1974 in konventioneller, massiver Bauweise mit Vollkeller errichtet. Die Außenfassade besteht aus Ziegelverblendmauerwerk, das Dach ist mit anthrazitfarbenen Betondachsteinen gedeckt.
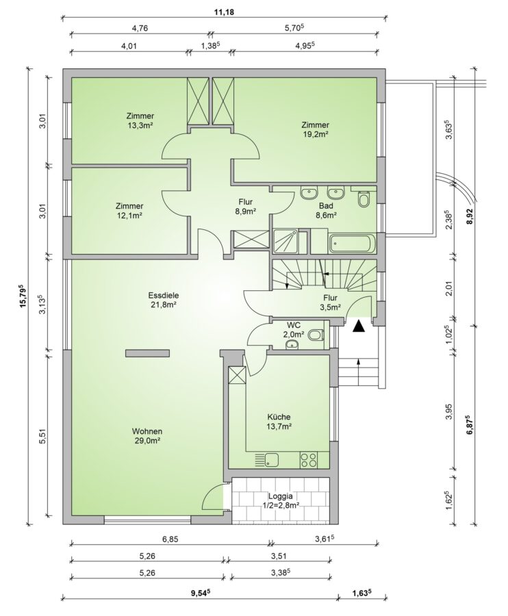
Die Immobilie verfügt über zwei großzügige Wohneinheiten. Beide Einheiten sind vollständig ausgestattet mit: jeweils vier Zimmern und einer Wohnküche mit Einbauküche sowie im Erdgeschoss mit einem Vollbad, Gäste-WC und einer Terrasse in Südlage, und im Dachgeschoss mit einem Duschbad und einer Loggia in Südlage.
Weitere Informationen, die Grundrisse usw. erhalten Sie mit der vollständigen Verkaufsaufgabe, welche Sie bitte über das Kontaktformular anfordern.
Ausstattung
- Massive Bauweise mit Ziegelverblendsteinfassade
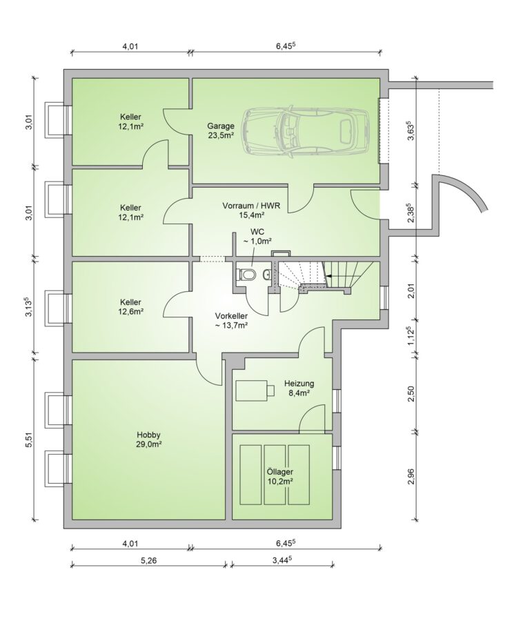
- Voll unterkellert, zusätzlich von außen begeh- und befahrbar, WC mit Waschbecken
- Zwei Wohneinheiten mit je 4 Zimmer, jeweils eine Wohnküche mit Einbauküche, im Erdgeschoss ein Gäste-WC und Vollbad, im Dachgeschoss ein Duschbad; beide Bäder wurden bereits modernisiert
- Terrasse bzw. Loggia in Südlage
- pflegeleichter Garten, überwiegend als Rasenfläche gehalten
- mehrere Stellplätze
- Oel-Brennwertkessel der Firma Viessmann Baujahr 2008 mit Luftabgassystem und verschieferter Schornstein
- Glasfaser und Erdgas liegen vor dem Grundstück in der Straße
Sonstige Informationen
BESICHTIGUNGSTERMINE: Ihren persönlichen Besichtigungstermin vereinbaren Sie über unser Büro.
MAKLER- UND ERWERBSNEBENKOSTEN: Für den Käufer entsteht im Erwerbsfall keine Maklerprovision, da wir vom Verkäufer vergütet werden. Die Notar- und Gerichtskosten sowie die Grunderwerbsteuer zahlt der Käufer.
GESCHÄFTSBEDINGUNGEN: Wir veräußern die Immobilie als einseitiger Interessenvertreter des Verkäufers und werden ausschließlich durch diesen vergütet. Die Angebote und Mitteilungen sind nur für den Empfänger bestimmt und vertraulich zu behandeln. Sie dürfen daher weder das Angebot noch Einzelheiten daraus Dritten ohne unsere Einwilligung weitergeben. Alle Angaben in dieser Verkaufsaufgabe stammen vom Verkäufer, weshalb eine Haftung der Firma Sasse Immobilien GmbH für diese Angaben nicht übernommen wird. Insbesondere die Angaben zur Wohnfläche und zum Baujahr sind von uns im Einzelnen nicht überprüft worden. Darüber hinaus kann keine Gewähr für die Qualität des Objektes und die Verfügbarkeit im Augenblick des Zuganges der Offerte übernommen werden.
Lage
Toppenstedt ist eine ruhige, familienfreundliche Gemeinde in der Samtgemeinde Salzhausen, rund 40 km südlich von Hamburg. Die Anbindung an die A7 (Auffahrten Garlstorf oder Thieshope) sorgt für schnelle Erreichbarkeit der Städte Hamburg, Winsen (Luhe) und Lüneburg. Eingebettet in die landschaftlich reizvolle Region am Rande der Lüneburger Heide bietet Toppenstedt eine hohe Lebensqualität mit viel Natur, Rad- und Wanderwegen sowie nahegelegenen Freizeitangeboten (Golf, Reiten, Waldbad). Im Ort selbst gibt es Kindergarten, Krippe, Arztpraxis, Bäcker und eine gute Busanbindung (HVV). Weiterführende Schulen, Supermärkte und weitere Infrastruktur finden sich im ca. 8 km entfernten Salzhausen. Traditionelle Dorffeste und aktive Vereine stärken das Gemeinschaftsgefühl. Toppenstedt verbindet naturnahes Wohnen mit guter Verkehrsanbindung und familiengerechter Infrastruktur – ideal für alle, die stadtnah, aber ruhig leben möchten.
Die dargestellte Position der Immobilie ist nur eine ungefähre Angabe.
Energiebedarfsausweis
-
Ausstelldatum11.03.2025
-
Gültig bis11.03.2035
-
GebäudeartWohngebäude
-
Baujahr lt. Energieausweis2008
-
PrimärenergieträgerÖl
-
EnergieeffizienzklasseF
-
Endenergiebedarf188.8 kWh/(m²·a)
Kontaktdaten
-
NameHerr Heinrich Sasse
-
FirmaSasse Immobilien GmbH
-
AdresseBäckerweg 1
21376 Salzhausen-Luhmühlen -
E-Mail Zentrale
-
Tel. Zentrale
verkauft
Dieses Objekt ist zur Zeit leider nicht verfügbar.

















































